欢迎访问 福州市闽华工程设计有限公司 官网!
设为首页
收藏本站
联系我们
网站首页
企业概况
新闻资讯
业务范围
企业文化
人才招聘
联系我们
当前位置
:首页 > 业务范围 > 水土保持方案编制
业务范围
水土保持方案编制
水土流失综合治理
水土保持监理监测验收
防洪影响评价
水资源论证
水利工程
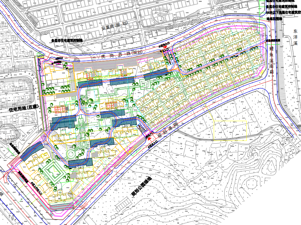
珑悦观邸水土保持方案报告书
发布时间 2022-06-15 浏览次数:1121
珑悦观邸位于宁德市周宁县境狮城镇仙风大道北侧。总用地面积62575.59m
2
,户数836,主要建筑面积121322.8m
2
,地下室建筑面积25945hm
2
,绿地面积18772.6m
2
。